انبارهای مواد شیمیایی
سوله ها و انبارهای مواد شیمیایی این پروژه شامل طراحی سولهها و انبارهای مواد شیمیایی شرکت سرمایه گذاری صنایع شیمیایی ایران میباشد که توسط کارشناسان این شرکت طراحی شده است. این پروژه توسط [...]
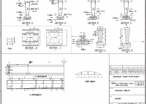
طراحی پل رودخانه برف آباد
پل رودخانه برفآباد پل برفآباد شهرستان اسلامآباد غرب با طول 22 متر توسط کارشناسان این شرکت طراحی شده است. هدف از طراحی و ساخت ابن پل، اتصال دو طرف رودخانه راوند و در [...]
دکل مخابراتی بندر امیرآباد
پروژه طراحی و نظارت دکل مخابراتی 72 متری بندر امیرآباد این پروژه شامل طراحی و نظارت بر اجرای دکل چهارپایه خود ایستای مخابراتی 72 متری در کنار مرکز کنترل ترافیک دریایی بندر امیرآباد میباشد. [...]
مطالعات تونل های استان ایلام-تونل های آزادی و تنگ قیر
مطالعات تونلهای آزادی و تنگ قیر استان ایلام تونل آزادی به طول 1200، عرض 10/4 و ارتفاع 7/2 متر دارای دو لاین عبور وسیله نقلیه و همچنین پیاده رو در دو طرف به عرض 1/2 متر [...]
مطالعات تونل های استان ایلام-تونل های پیامبر اعظم و رنو
تونلهای پیامبر اعظم و رنو استان ایلام تونل پیامبر اعظم به طول 1480 متر واقع در کیلومتراژ 500+26 جاده ایلام-ایوان، در سال 1388 با عرض و ارتفاع مفید 1100 و 765 سانتیمتر احداث [...]
مطالعات تونل های استان ایلام-تونل های راه کربلا , شباب یک و دو
مطالعات تونلهای راه کربلا و شباب یک و دو استان ایلام تونل راه کربلا به طول 422 متر، با عرض و ارتفاع مفید 1200 و 860 سانتیمتر، در کیلومتراژ 800+9 جاده ایلام-مهران و [...]
خدمات نظارت عالیه و کارگاهی بر ساختمان های اتاق طلا، پارکینگ آتش نشانی و جایگاه مخازن سوخت
خدمات نظارت عالیه و کارگاهی بر ساختمان های اتاق طلا، پارکینگ آتش نشانی و جایگاه مخازن سوخت این پروژه شامل کلیه خدمات نظارت بر عملیات اجرایی ساختمان اتاق طلا، پارکینگ آتش نشانی و [...]


